找回密碼
 注册
搜索
熱搜: 活动 交友 discuz
查看: 1368|回復: 0

恭请大家给评断一下

[複製鏈接]
發表於 2004-9-8 03:01:27 | 顯示全部樓層

恭请大家给评断一下

[ ?篇文章最後由zhangjq7076在 2004/09/08 09:15pm 第 3 次?? ]

11_36.gif
回復

使用道具 舉報

發表於 2004-9-8 04:41:43 | 顯示全部樓層

恭请大家给评断一下

請問單位有多少人居住?坐向是在何處下盤?樓高多少?左右前後有沒有樓房?附近樓房高低情況?
回復

使用道具 舉報

 樓主| 發表於 2004-9-8 05:03:45 | 顯示全部樓層

恭请大家给评断一下

[ ?篇文章最後由zhangjq7076在 2004/09/07 09:07pm 第 1 次?? ]

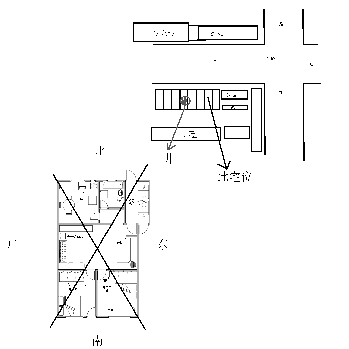
该宅住3人  居住2楼  楼高7层 1楼为门市房
取中心下卦  
南面为四层楼 北面是路 路北是楼6层 东面是5层居民楼
回復

使用道具 舉報

發表於 2004-9-8 05:35:14 | 顯示全部樓層

恭请大家给评断一下

宅主應在工作有進昇機會,兒子讀書更有進步,整體來看此宅不錯。
回復

使用道具 舉報

 樓主| 發表於 2004-9-8 05:44:33 | 顯示全部樓層

恭请大家给评断一下

[ ?篇文章最後由zhangjq7076在 2004/09/08 12:46pm 第 2 次?? ]

[ ?篇文章最後由zhangjq7076在 2004/09/07 09:58pm 第 1 次?? ]
回復

使用道具 舉報

發表於 2004-9-8 05:49:47 | 顯示全部樓層

恭请大家给评断一下

可否提出家庭各人出生年份?
回復

使用道具 舉報

 樓主| 發表於 2004-9-8 06:03:04 | 顯示全部樓層

恭请大家给评断一下

[ ?篇文章最後由zhangjq7076在 2004/09/08 12:45pm 第 1 次?? ]

想调整如下:
11_36_6.gif
回復

使用道具 舉報

發表於 2006-6-16 19:29:12 | 顯示全部樓層
請問此宅坐向,於何年建造?
回復

使用道具 舉報

手機版|小黑屋|術數縱橫

GMT+8, 2025-10-22 04:51 AM , Processed in 0.020230 second(s), 14 queries .

Powered by Discuz! X3.5

© 2001-2025 Discuz! Team.

快速回復 返回頂部 返回列表