找回密碼
 注册
搜索
熱搜: 活动 交友 discuz
查看: 2428|回復: 0

请教大师几个问题

[複製鏈接]
發表於 2007-9-4 11:42:04 | 顯示全部樓層 |閱讀模式
1.
乾山巽向下卦(八运)2004-2023年
    午
巽向┌───┬───┬───┐坤
     │ 1 8   │ 5 3   │ 3 1   │
     │ 七    │ 三   │ 五    │
     ├───┼───┼───┤
卯    │ 2 9   │ 9 7   │ 7 5   │酉
     │ 六    │ 八   │ 一    │
     ├───┼───┼───┤
     │ 6 4   │ 4 2   │ 8 6   │
     │ 二    │ 四   │ 九    │
艮    └───┴───┴───┘乾山
    子

排盘好之后,年飞星、月飞星、日飞星、时飞星 结合在一起是哪个比较重要?应该怎样结合?哪个更重要?

[ 本帖最後由 phyxq 於 2007-9-4 11:46 編輯 ]
快照-1.jpg
 樓主| 發表於 2007-9-4 11:45:36 | 顯示全部樓層
2.旧房子起飞星是以建造的时间起,还是以现在八运的起?
如房子是1995年建造的。是要以七运起飞星,还是以八运起飞星?
回復

使用道具 舉報

 樓主| 發表於 2007-9-4 12:09:30 | 顯示全部樓層
房子是套房,在701,
门开在东北方 今年 是二五相连,我已在门上挂六帝钱,但感觉还是不顺,大师能否指点。

入住房子的是 1975男  1978女  2005男 

[ 本帖最後由 phyxq 於 2007-9-4 12:10 編輯 ]
无标题3.JPG
回復

使用道具 舉報

 樓主| 發表於 2007-9-4 15:20:59 | 顯示全部樓層
请大师回复一下吧!
特别是这个月,二五八 相连,该怎么化解呀!
回復

使用道具 舉報

 樓主| 發表於 2007-9-4 16:43:38 | 顯示全部樓層
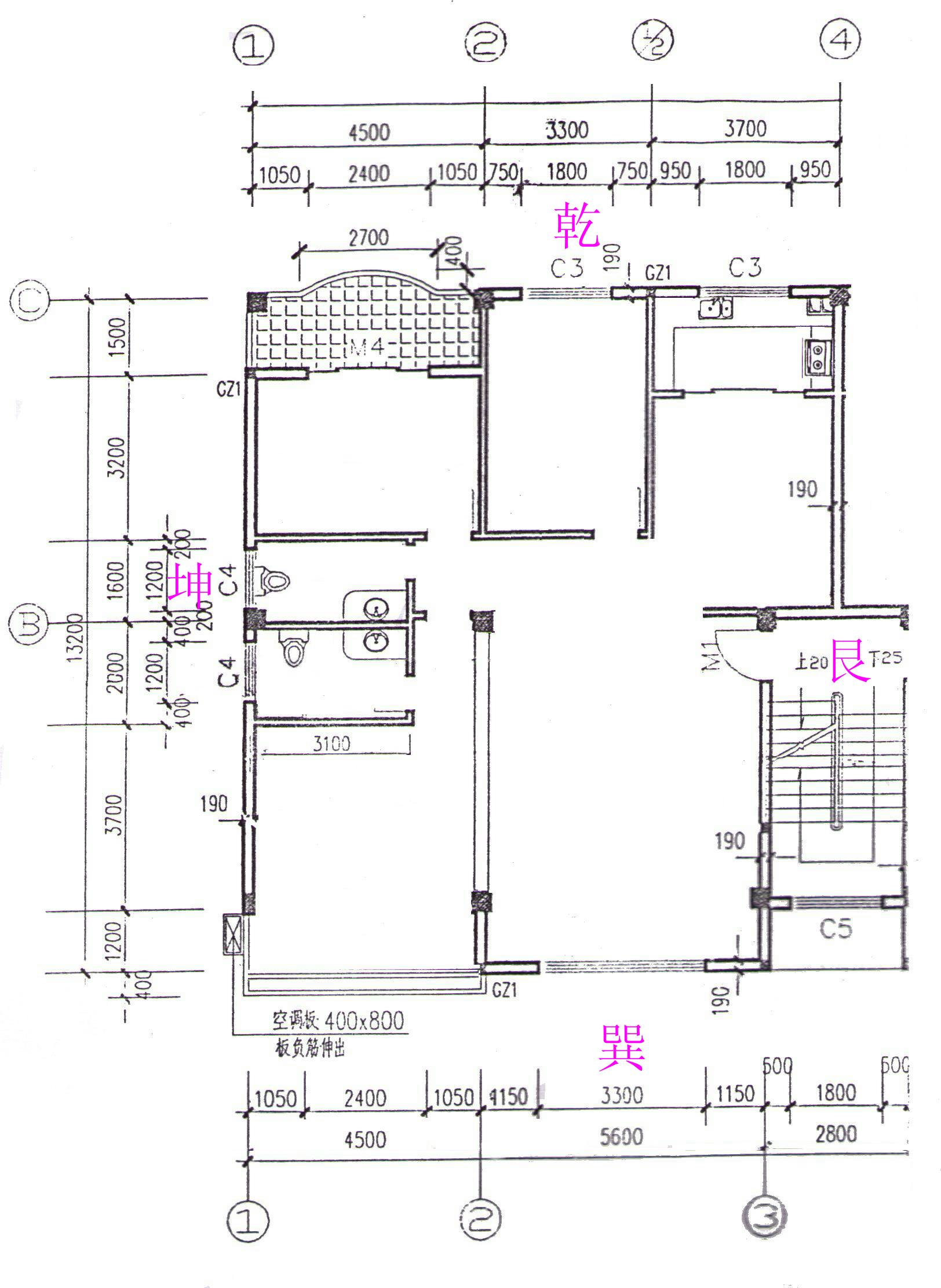
房子平面图
房子平面图.jpg
回復

使用道具 舉報

發表於 2007-9-4 17:01:04 | 顯示全部樓層
原帖由 phyxq 於 2007-9-4 16:43 發表。
房子平面图


是4658吧
回復

使用道具 舉報

 樓主| 發表於 2007-9-4 19:39:33 | 顯示全部樓層
我这是套房,整座楼的方向是 坐亁向巽 
回復

使用道具 舉報

發表於 2007-9-4 19:42:49 | 顯示全部樓層
原帖由 phyxq 於 2007-9-4 19:39 發表。
我这是套房,整座楼的方向是 坐亁向巽 


所以应该以坐向起星才对吧.......不过最好把你的情况说说看
回復

使用道具 舉報

 樓主| 發表於 2007-9-5 11:40:17 | 顯示全部樓層
我家的小区图
演示文稿2.jpg
回復

使用道具 舉報

發表於 2007-9-5 12:40:03 | 顯示全部樓層
原帖由 phyxq 於 2007-9-4 12:09 發表。
房子是套房,在701,
门开在东北方 今年 是二五相连,我已在门上挂六帝钱,但感觉还是不顺,大师能否指点。

入住房子的是 1975男  ...


你说的不顺,是不是指小孩方面????
回復

使用道具 舉報

 樓主| 發表於 2007-9-5 15:45:00 | 顯示全部樓層
是的,主要是小孩。两次快上了手术台,病又好了。回家之后,反反复复的,很不顺。
还有财运也不好。
回復

使用道具 舉報

發表於 2007-9-5 16:22:19 | 顯示全部樓層
原帖由 phyxq 於 2007-9-5 15:45 發表。
是的,主要是小孩。两次快上了手术台,病又好了。回家之后,反反复复的,很不顺。
还有财运也不好。


门口边厅跟厨房那间墙,是不是拆开或者处理一下,那可能加强了五黄的威力,不过就你这房间的现时布置及其你所提供的外环境,想要推旺还是不易做到,你还是向版主小楼大大请教吧

[ 本帖最後由 大海水 於 2007-9-5 16:24 編輯 ]
回復

使用道具 舉報

 樓主| 發表於 2007-9-5 16:48:04 | 顯示全部樓層
谢谢!大门后是木做的鞋柜。还有其他的化解方法吗?
回復

使用道具 舉報

發表於 2007-9-6 22:53:45 | 顯示全部樓層
原帖由 phyxq 於 2007-9-5 15:45 發表。
是的,主要是小孩。两次快上了手术台,病又好了。回家之后,反反复复的,很不顺。
还有财运也不好。

此宅是七運宅!
那一年搬入?門氣和客廳窗有無改過?或陽臺外推?
在那下盤?
回復

使用道具 舉報

發表於 2007-9-6 23:00:38 | 顯示全部樓層
原帖由 小樓 於 2007-9-6 22:53 發表。

此宅是七運宅!
那一年搬入?門氣和客廳窗有無改過?或陽臺外推?
在那下盤?

坐向要確定
今年艮方很危險!
回復

使用道具 舉報

手機版|小黑屋|術數縱橫

GMT+8, 2025-10-23 09:07 PM , Processed in 0.025736 second(s), 17 queries .

Powered by Discuz! X3.5

© 2001-2025 Discuz! Team.

快速回復 返回頂部 返回列表