找回密碼
 注册
搜索
熱搜: 活动 交友 discuz
查看: 1374|回復: 0

[實例探討] 請各位大師指教,此房如此改變臥室門方向是否可行,非常感谢

[複製鏈接]
發表於 2007-12-4 17:54:01 | 顯示全部樓層 |閱讀模式
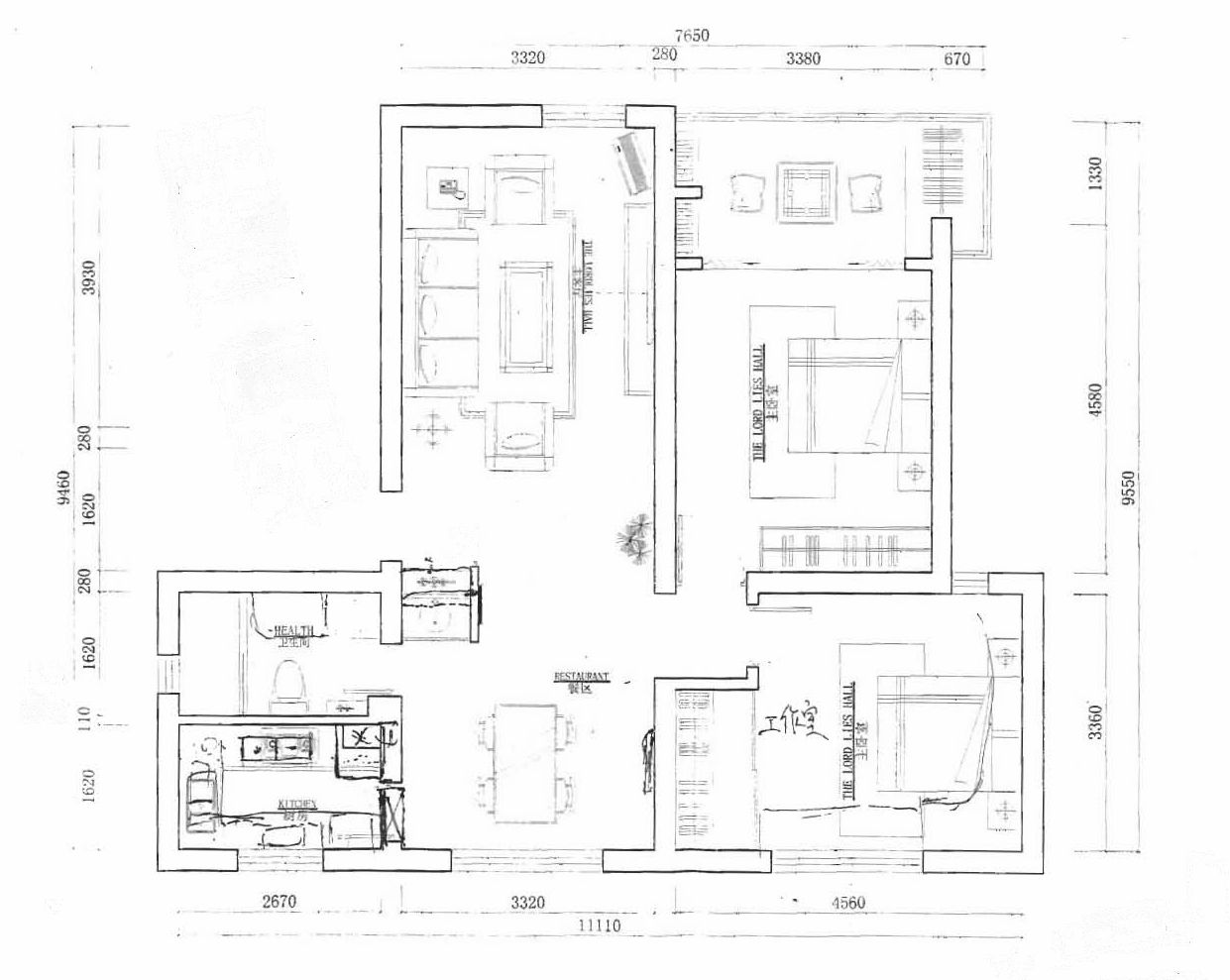
各位大師,小弟買的是十年房齡的二手房、18樓的18樓,房型如下,原是三房一廳一衛,現在我們想把原客廳和朝南的小間打通成客廳和飯廳。現在請大師指教一下,原大門對著主臥門是否需要更改一下,似乎風水上這樣對漏財?(有設計師出了方案,是否可行,還請大師指教)二是廚房的灶頭和水槽具體應該如何放置呢?這兩個的位置好象也很關鍵啊。請大師指教了。非常感謝。

老婆生辰为:庚申年 已丑月 乙酉日  (农历12月初2)约早上五点至六点
我的生辰为:已未年 癸酉月 辛丑日  (农历 8月11)约下午两点至三点
房型图1.jpg
 樓主| 發表於 2007-12-4 17:55:52 | 顯示全部樓層
這是打算改後的房型。請大家賜教
sysj.jpg
回復

使用道具 舉報

發表於 2008-1-19 19:02:42 | 顯示全部樓層
我是易学爱好者,你的房子,缺巽位,可在外墙埋一块泰山石,以补空缺。离宫应高大,客厅尽量不要吊顶,活着吸顶灯尽量处于第一高度。主卧室属祸害,你是东四命本来应该住东四房,以涨元气,不过坤房也不是很有问题,只要主卧室吊顶降低高度,或者空调,灯具尽量低一些,餐厅处在天医应次于客厅高度,或者比西四房高度高些,马桶的位置处在六煞位,凶位,不去管它。瞎说一通,望大师指正
回復

使用道具 舉報

手機版|小黑屋|術數縱橫

GMT+8, 2025-10-21 10:28 AM , Processed in 0.021667 second(s), 17 queries .

Powered by Discuz! X3.5

© 2001-2025 Discuz! Team.

快速回復 返回頂部 返回列表