找回密碼
 注册
搜索
熱搜: 活动 交友 discuz
查看: 3532|回復: 0

有劳版主看看此房应注意什么问题?

[複製鏈接]
發表於 2008-3-4 12:06:09 | 顯示全部樓層 |閱讀模式
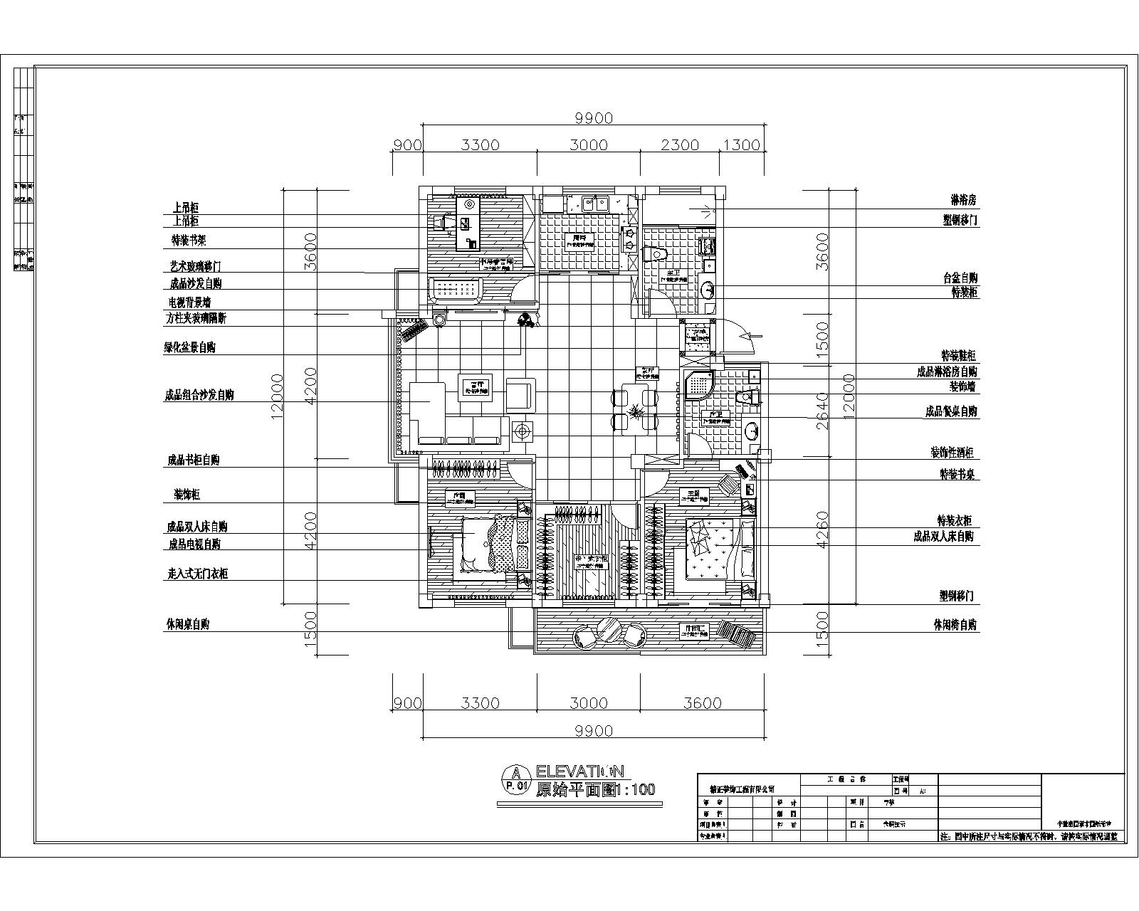
有劳版主看看此房应注意什么问题?

[ 本帖最後由 3456 於 2008-3-4 12:07 PM 編輯 ]
C1-Model.plt.jpg
 樓主| 發表於 2008-3-4 12:10:09 | 顯示全部樓層
夫妻两人均为西历1978年马年出生
回復

使用道具 舉報

發表於 2008-3-5 19:37:22 | 顯示全部樓層
沒有坐向和周圍環境圖
回復

使用道具 舉報

 樓主| 發表於 2008-3-6 12:06:46 | 顯示全部樓層
位于此小区36幢西边套(红色标志)

[ 本帖最後由 3456 於 2008-3-6 12:13 PM 編輯 ]
1169637403157[2].JPG
回復

使用道具 舉報

 樓主| 發表於 2008-3-6 12:07:43 | 顯示全部樓層
前后环境如图

次房为南北走向

[ 本帖最後由 3456 於 2008-3-6 12:16 PM 編輯 ]
DSC00724.JPG
回復

使用道具 舉報

 樓主| 發表於 2008-3-6 12:15:09 | 顯示全部樓層
中心花园位置为一喷泉
DSC00720.JPG
回復

使用道具 舉報

發表於 2008-3-6 12:45:22 | 顯示全部樓層
沒坐向

資料少

單從平面圖佈局


漏財

常吵駡

小病多
回復

使用道具 舉報

 樓主| 發表於 2008-3-6 17:04:50 | 顯示全部樓層
谢谢,还需要什么资料?
回復

使用道具 舉報

發表於 2008-3-6 18:27:57 | 顯示全部樓層
原帖由 3456 於 2008-3-6 12:07 PM 發表。
前后环境如图

次房为南北走向


是坐南向北還是坐北向南?

什么是侯入住?
回復

使用道具 舉報

 樓主| 發表於 2008-3-6 20:14:59 | 顯示全部樓層
单元门是向南开的。

还没装修,预计10月份入住。
回復

使用道具 舉報

發表於 2008-3-6 22:52:20 | 顯示全部樓層
1需提供::出生年,月,日,時!!性別,曆別!!
2等比縮小室內擺設平面圖..大門向.方位度數&宅向度數
最好有室外近處環境景觀平面圖.....

以住宅中心測量...樓層大門方位度數....
以住宅中心測量...公寓總大門方位度數...
以公寓總門測.......門外的大水池...所在方位度數


請以360度數的單位...勿以簡單的東南西北..不夠精準!!

[ 本帖最後由 world5168 於 2008-3-6 11:09 PM 編輯 ]
回復

使用道具 舉報

 樓主| 發表於 2008-3-7 09:56:11 | 顯示全部樓層
谢谢,我先测一下 数据。
回復

使用道具 舉報

發表於 2008-3-7 23:36:02 | 顯示全部樓層
此房虽说没有住,我看不吉,住进后易破财,桃花,事业不顺,心血管病,糖尿病和筋骨痛。从这房看你家可能于2002,2003年不顺,破财,父亲身体不利。家中祖坟可能动过,祖坟的南方高,北方低洼有水。你是老二可能性大。
回復

使用道具 舉報

 樓主| 發表於 2008-3-8 23:25:17 | 顯示全部樓層
原帖由 香山居士 於 2008-3-7 11:36 PM 發表。
此房虽说没有住,我看不吉,住进后易破财,桃花,事业不顺,心血管病,糖尿病和筋骨痛。从这房看你家可能于2002,2003年不顺,破财,父 ...


那几年好像没有这种情况。

祖坟坐北面南,在山坡上,南面沟里有水。(如图)

家中老大。
DSC00504.JPG
回復

使用道具 舉報

 樓主| 發表於 2008-3-20 19:23:01 | 顯示全部樓層
原帖由 world5168 於 2008-3-6 10:52 PM 發表。
1需提供::出生年,月,日,時!!性別,曆別!!
2等比縮小室內擺設平面圖..大門向.方位度數&宅向度數
最好有室外近處環境景?br />
以住宅中心測量...樓層大門方位度數....
以住宅中心測量...公寓總大門方位度數.. ...



男,西历1978年3月19日下午3-5时间出生;
女,西历1978年4月30日上午11-13时出生;


大门正东偏东北25度
单元门正东偏东北45度
回復

使用道具 舉報

手機版|小黑屋|術數縱橫

GMT+8, 2025-10-23 05:17 PM , Processed in 0.024274 second(s), 17 queries .

Powered by Discuz! X3.5

© 2001-2025 Discuz! Team.

快速回復 返回頂部 返回列表