找回密碼
 注册
搜索
熱搜: 活动 交友 discuz
查看: 1248|回復: 0

小女子健康不佳,麻煩請各位專家指點新屋格局

[複製鏈接]
發表於 2008-5-24 12:05:59 | 顯示全部樓層 |閱讀模式
各位專家、大師好

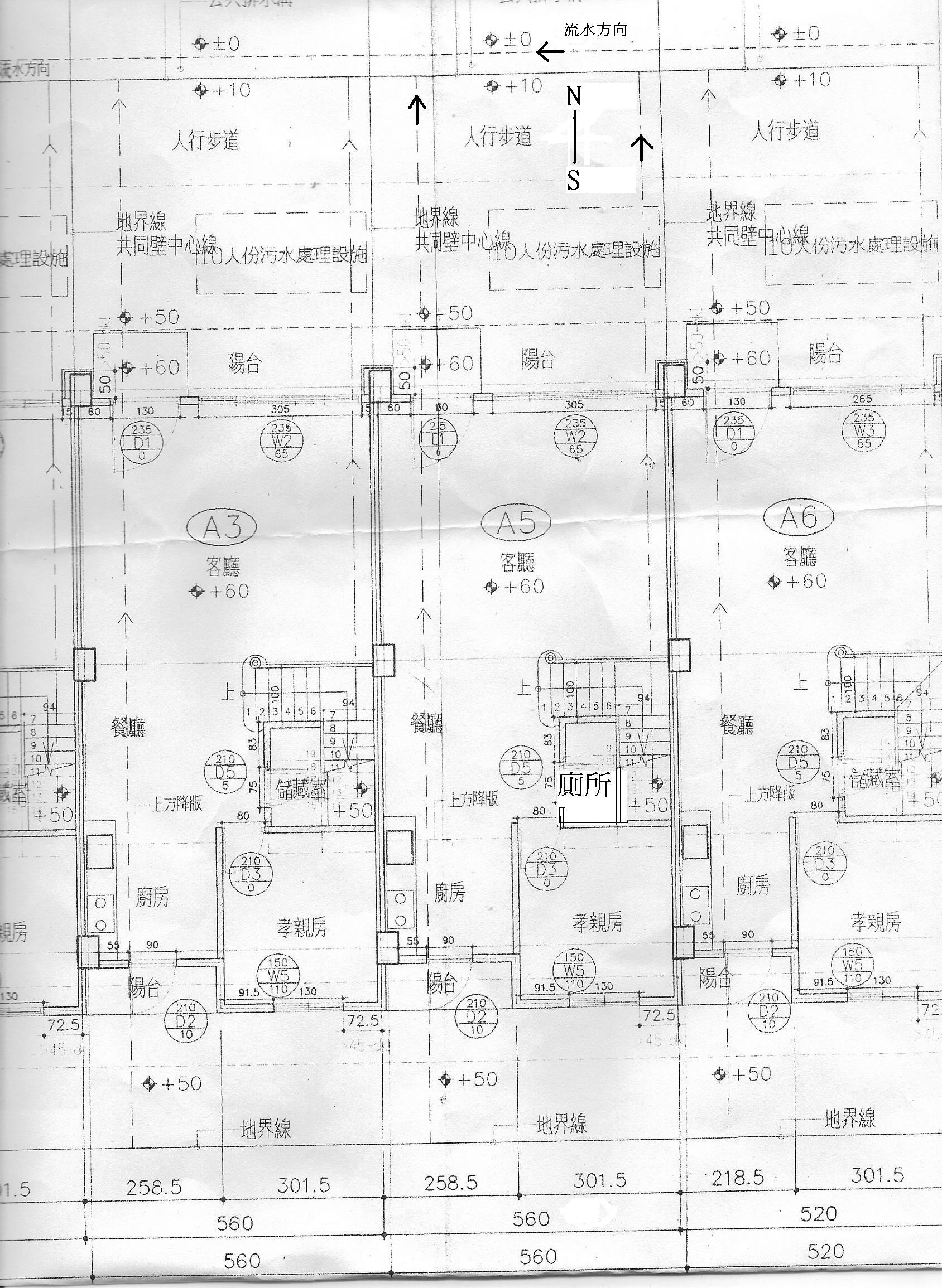
小女子前年於懷孕時罹患癌症,今年健康狀況好轉許多,為了想在有生之年完成築巢夢想,於這個月買了一棟新屋,這個房子的通風、採光都非常的好,現在即將進行裝潢擺設的部分,不知道此屋的格局上有沒有什麼需要注意的地方,我們不求大富大貴,只希望平安健康就好,煩請各位前輩不吝賜教!
此外有些問題也想請教各位前輩
Q1:二樓的主臥室房門是面對向下的樓梯,需要更動房門的位置嗎?或有其他簡易的方法可解決此問題?主臥室的床該如何百較妥當呢?
Q2:一樓的孝親房和三樓的兩個房間,哪一間比較適合當小孩房呢?
Q3:一樓的後院可否種樹?
Q4:想在農曆六月中下旬搬遷,不知道哪天適合我們入宅呢?

此屋是座南向北,大約偏東10度,以下為房子的兩種平面圖及我和先生的命盤,拜託各位前輩幫忙了,感激不盡!!!
掃瞄.jpg
Scan0003.jpg
408_354790.jpg
408_354791.jpg
 樓主| 發表於 2008-5-24 17:54:08 | 顯示全部樓層
這篇的圖形沒有處理好,圖片過大,
麻煩版主幫我刪掉 ,我再重發文
回復

使用道具 舉報

發表於 2008-5-29 12:11:41 | 顯示全部樓層
原帖由 renard 於 2008-5-24 05:54 PM 發表。
這篇的圖形沒有處理好,圖片過大,
麻煩版主幫我刪掉 ,我再重發文



請到﹕
论坛开通风水装璜版,征集样板房

找幫忙吧。
回復

使用道具 舉報

發表於 2008-6-29 00:28:08 | 顯示全部樓層
要方向和相片,謝謝.
回復

使用道具 舉報

手機版|小黑屋|術數縱橫

GMT+8, 2025-10-22 06:42 PM , Processed in 0.021507 second(s), 17 queries .

Powered by Discuz! X3.5

© 2001-2025 Discuz! Team.

快速回復 返回頂部 返回列表