找回密碼
 注册
搜索
熱搜: 活动 交友 discuz
查看: 1575|回復: 0

六爻風水研究

[複製鏈接]
發表於 2008-6-23 12:50:28 | 顯示全部樓層 |閱讀模式
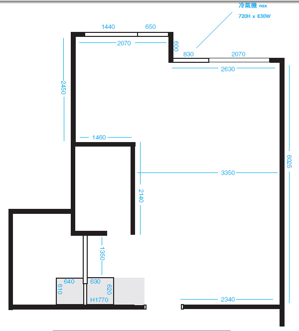
為朋友新居問家宅 卜得地雷復卦,後到新居勘查,發覺此宅坐未向丑(門向),門口走廊通亥方(西北)電梯大堂,窗外有開洋遠景,見公路盤錯和大形公共泳池,與卦象非常吻合(請參考附圖1),至於類象吉凶用事不大肯定,希望各位前被高人指點一二,感激不盡。我的朋友(兔)將與兒子(鼠)、菲傭等三人入住,想知道對朋友及家人的事業、學業、姻緣、健康等有何影響? 詢問內容:問黃文光新居風水?
宜抑
日期: 西元 2008 年 3 月 3 日 19 時 29 分  陰曆 97 年 1 月 26 日未
┌─────────────────┐時日月年  空 驛 桃 貴 羊
│ 
DESTINY命理網 手動起卦 │      亡 馬 花 人 刃
Destiny.xfiles.to 庚壬甲戊  辰 申 卯 卯 子
└─────────────────┘戌寅寅子  巳     巳
         坤土一世卦:地雷復       

【六獸】【伏  神】  【 本  卦 】       
 白虎         子孫— —癸
酉金
    
 螣蛇         妻財— —癸
亥水
    
 勾陳        
兄弟— —癸丑土
   
 朱雀         兄弟— —庚
辰土
 
 青龍 父母 乙
巳火  官鬼— —庚寅木
 
 玄武        
妻財———庚子水  


[ 本帖最後由 六爻小學徒 於 2008-6-23 01:12 PM 編輯 ]
henry_apt_plan.jpg

評分

1

查看全部評分

發表於 2008-6-23 20:15:02 | 顯示全部樓層
此宅是吉宅很好。附近又有水或有河流,环境很好。很适应居住。住此宅家中定有当官之人,而且家中喜事连连。
看来也有些问题存在:1.厨房或灶房上有横梁,有一种压抑感。2.此宅较耗财。更要有防盗措施。3.住此宅对婚姻家庭不利,并且家人有(或易得)患腰疾。
试断   供参考
回復

使用道具 舉報

 樓主| 發表於 2008-6-25 18:26:46 | 顯示全部樓層
多謝quzuezhang師兄指點。屋主買此屋前已離婚,目前此屋似乎沒有女主人,不知屋主入住後會否有改變?關於腰患,現在還沒有,將來年紀大了就很有可能。當官之人現在沒有,兒子長大後可能会吧!你說的喜事所指何事?可否講詳細一點?玄武財生青龍官象女主人有外遇吧?應兄克亥財是指盜賊吧?如何化解耗財之弊?
謝謝!
回復

使用道具 舉報

發表於 2008-6-25 19:03:50 | 顯示全部樓層
回复楼主:"住此宅家中定有当官之人,并且家人有(或易得)患腰疾。”
指久住,或以前卖主家人。你提之事:“玄武財生青龍官象女主人有外遇吧?”不是的。是::不聚财,克家中女主人。
是要有防盗措施的,切记,切记!关于化解耗財之弊,请自己化解吧。                     供参考!
回復

使用道具 舉報

 樓主| 發表於 2008-6-25 19:42:58 | 顯示全部樓層
多謝師兄指點,我会告誡屋主加強防盜措施。
此屋新買,屋主尚未遷入。前屋主之事不詳。
新屋主45歲屬兔,離婚,經營廣告公司。兒子十二歲屬鼠,今年唸中學。連菲傭共三人。不知屋主入住後,会不會找到新的女主人?

之前交代如不清楚,尚請見諒.
回復

使用道具 舉報

手機版|小黑屋|術數縱橫

GMT+8, 2025-10-22 01:25 PM , Processed in 0.025570 second(s), 21 queries .

Powered by Discuz! X3.5

© 2001-2025 Discuz! Team.

快速回復 返回頂部 返回列表