找回密碼
 注册
搜索
熱搜: 活动 交友 discuz
查看: 1224|回復: 0

請各大大 求救

[複製鏈接]
發表於 2009-7-26 01:56:10 | 顯示全部樓層 |閱讀模式
運盤如下

7運坐酉向卯

16  51 38
六  二 四

27 95 73
五 七 九

62 49 84
一 三 八

樓上大門都是卯位

流年是9入中請問如何化此局
發表於 2009-7-26 08:55:38 | 顯示全部樓層
請先生說清楚一點
如附上地圖要有周遭的情勢
如有衛星地圖更佳
回復

使用道具 舉報

 樓主| 發表於 2009-7-26 11:46:02 | 顯示全部樓層

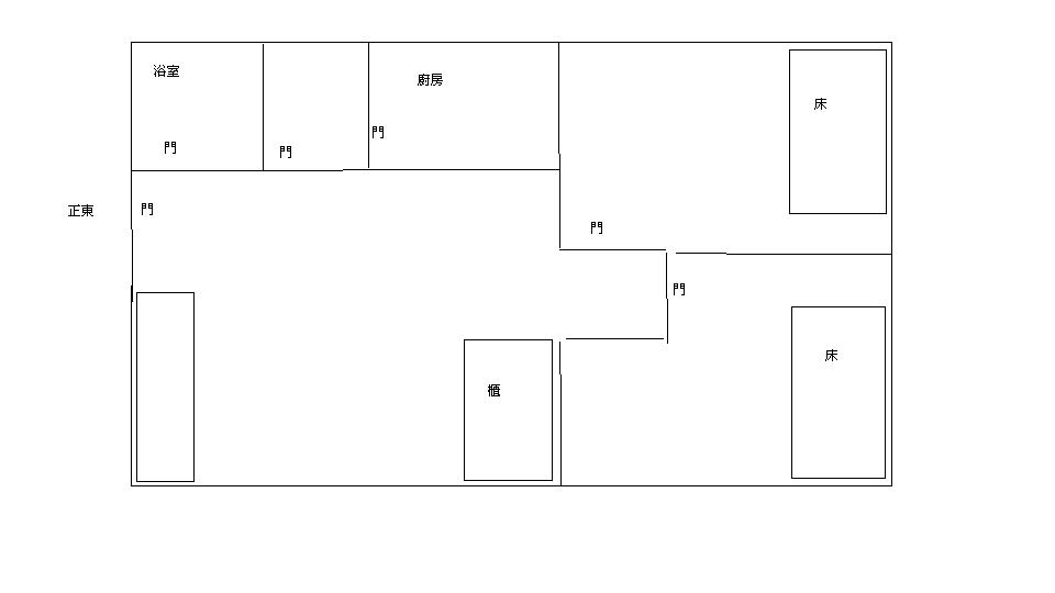
平面圖

有勞大大賜教
floor plan.JPG
回復

使用道具 舉報

發表於 2009-7-26 14:29:21 | 顯示全部樓層
坐用白水晶球   向上白水晶球加金蟾化解  永远用则可  因宅命盘飞星组合凶   流年引发是应期  但化解只是缓解作用
回復

使用道具 舉報

 樓主| 發表於 2009-7-27 00:15:19 | 顯示全部樓層

謝易大大

大門需要化嗎 及五皇如何化呢
回復

使用道具 舉報

發表於 2009-7-27 15:01:57 | 顯示全部樓層
向上则是大门方  可用玻璃合装好  埋于门槛地下内  五黄用金蟾或乾隆钱化
回復

使用道具 舉報

 樓主| 發表於 2009-7-27 23:18:55 | 顯示全部樓層

如何化流年呢

中宮要化嗎
有勞易大大
回復

使用道具 舉報

發表於 2009-7-27 23:37:58 | 顯示全部樓層
東北開窗可解

土生金
回復

使用道具 舉報

發表於 2009-7-28 02:15:04 | 顯示全部樓層
1\本身中宫就要化去紫黄毒药
2\今年小心家财,以防被盗和身体健康各方面,,
3\本来浴室位就应该要来做房间
回復

使用道具 舉報

發表於 2009-7-29 07:58:40 | 顯示全部樓層
原帖由 董鬼谷 於 2009-7-27 11:37 PM 發表。
東北開窗可解

土生金






??

此宅本年犯伏吟,宜在生旺进气之方通气,楼上何以理解为要"东北开窗"?

在下不明白
回復

使用道具 舉報

 樓主| 發表於 2009-7-30 01:16:27 | 顯示全部樓層

請各大大明言

小第 不明
可否明言 及如何化中宮位呢
那流年五皇是要化嗎
回復

使用道具 舉報

發表於 2009-7-30 16:08:01 | 顯示全部樓層
為何要化呢? 八國巒頭又怎樣呢? 宅中人的生肖命卦若何? 令星是否得力呢? 圖則又是否真實尺吋呢? 真實坐向度數又是多少呢? 等等... 等等....
種種問題必須弄清, 不可亂來.

原帖由 灶君 於 2009-7-26 01:56 AM 發表。
運盤如下

7運坐酉向卯

16 51 38
六 二 四

27 95 73
五 七 九

62 49 84
一 三 八

樓上大門都是卯位

流年是9入中請問如何化此局
回復

使用道具 舉報

手機版|小黑屋|術數縱橫

GMT+8, 2026-2-4 07:38 PM , Processed in 0.024262 second(s), 17 queries .

Powered by Discuz! X3.5

© 2001-2025 Discuz! Team.

快速回復 返回頂部 返回列表